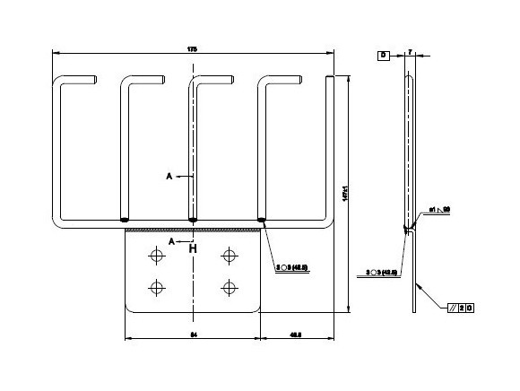
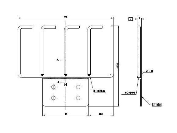
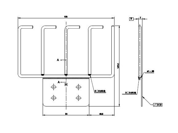
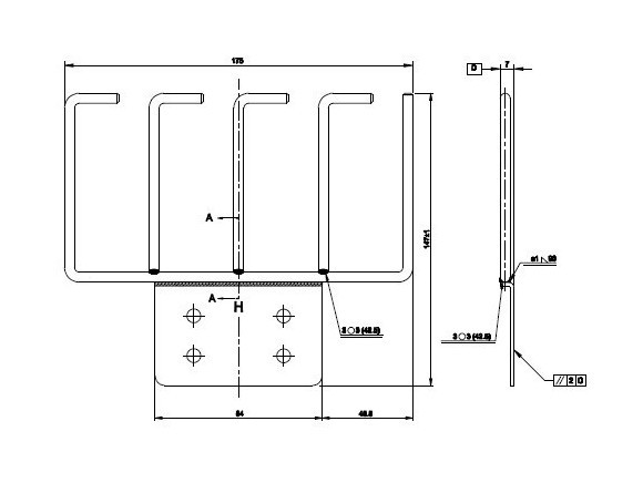
Hyperline Кабельная гребенка 4U, металлическая, для шкафов Hyperline и ZPAS (комплект левая+правая)

0

Артикул: CMW-4U-CMB

Характеристики

Монтажная высота 4U
Материал металл
Вид продукции кабельная гребенка
Серия CMW

Цена по запросу

В наличии: 587 шт.

Способы доставки

  • Доставка по Пензе
  • Доставка по России (все города)
  • Самовывоз

Способы оплаты

  • Б/н оплата по счету